Ground Lease at The Forum
305 North Hurstbourne Parkway, Louisville, KY 40222
Louisville Mega Cavern
1841 Taylor Avenue. Louisville, KY 40213
5,263 – 18,336 LEASE
Property Description
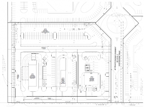
Expandable Opportunity: Potential to increase total development area from 4.55 to 9.15 acres.
Highlights
- Prime Location: Situated near Shelbyville Road and North Hurstbourne Parkway
- High Visibility: Features over 500 feet of frontage on N. Hurstbourne Parkway with a dedicated traffic light for easy access.
- Strong Market Demographics: Surrounded by high daytime population, strong income levels, and walkable amenities including retail, hospitality, and dining.
- Expandable Opportunity: Potential to increase total development area from 4.55 to 9.15 acres.
Available Space(s) For Lease
Acres |
Price |
|---|---|
| 4.55 | Negotiable |
LEASE BROKER
Craig Collins
Senior Director
502-719-3221
ccollins@commercialkentucky.com
LEASE BROKER
Brent Boland
Senior Director
502-384-4494
bboland@commercialkentucky.com
LEASE BROKER
Austin English, MBA
Senior Associate
502-719-3258
aenglish@commercialkentucky.com



